Rotera
Assisted Living
Location : Orkeljunga Municipality, Sweden
Context :
Take an existing health nursery school and re-utilize it as an assisted living Facility.
The existing structure is located within a quiet single/multi-family residential zone. There are many nature and historical sites located nearby. The site itself has ample outdoor space for residence and is directly adjacent a small lake and nature area with walking trails.
Site Analysis :


Concept & Inspiration














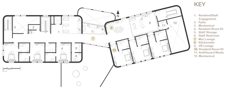
Floor Plans






Renders















